dodatečné zapojení mlhovek MK1

Elektronika, el. výbava, diagnostika, kontrolky, přístroje

Moderátoři: peta.smolik, mad mike, Matto, Katy

Zamčeno
Čáp
Začátečník
Příspěvky: 2
Registrován: 19 úno 2008, 13:25

dodatečné zapojení mlhovek MK1

Příspěvek od Čáp »

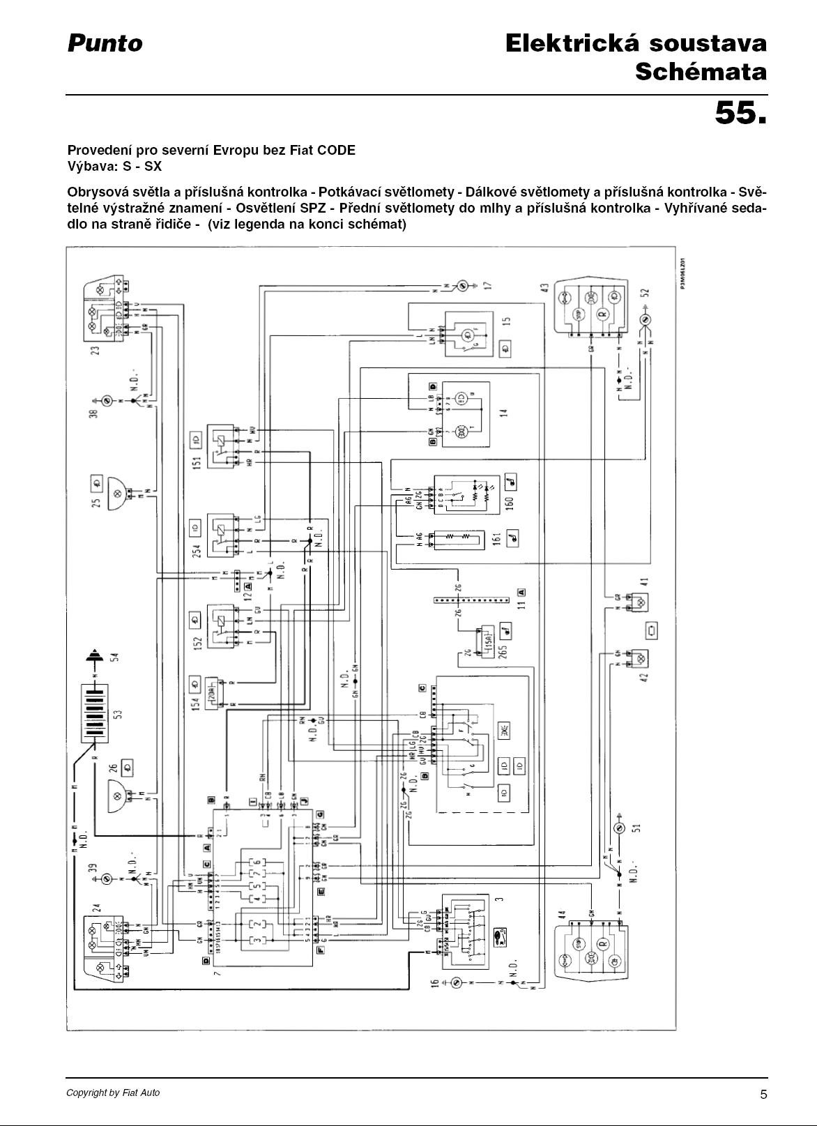
Zdravim, chci se zeptat, koupil sem sadu předních mlhovek na punto I, jsou tam kabely, ale netušim kam a jak a co zapojit, nemáte někdo ponětí jak to zapojit, nebo třeba zkušenosti, nějaký manuál?
předem dík za rady!
Reklama
 

Modeler
Fiaťák
Příspěvky: 83
Registrován: 06 bře 2008, 10:09
Bydliště: Praha
Kontaktovat uživatele:

Re: dodatečné zapojení mlhovek MK1

Příspěvek od Modeler »

Ahoj,
zkus se mrknout na tohle. Mozna by ti to mohlo pomoct.
Přílohy
schema2.JPG
schema2.JPG (148.7 KiB) Zobrazeno 2443 x
schema3.JPG
schema3.JPG (161.95 KiB) Zobrazeno 2442 x
schema.JPG
schema.JPG (200.92 KiB) Zobrazeno 2444 x
abusacek
Zkušenej Fiaťák
Příspěvky: 451
Registrován: 01 říj 2007, 19:49
Bydliště: Zdice okres Beroun
Kontaktovat uživatele:

Re: dodatečné zapojení mlhovek MK1

Příspěvek od abusacek »

Podobné téma včetně návod na zapojení je tady https://www.club-fiat.com/viewtopic.php?f=69&t=5524
Fiat Ulysse, rv. 95, 2.0 benzín
Zamčeno

Zpět na „Punto - elektrika“