punto MKI a el.zrcátka
Moderátoři: peta.smolik, mad mike, Matto, Katy
punto MKI a el.zrcátka
Chci se zeptat,dával si někdo na punto MKI el.zrcátka z GTčka? Chci si je tam dát,jen nemůžu najít v el.schématech na punto zapojení el.zrcátek,to jaksi taliáni vynechali a nevim proč.Nebo nemá někdo schéma zapojení na jiné auto,třeba z Bravy ? To by mi taky pomohlo,v elektrice se vyznám takže by to pro mě problem nebyl,jen se nemám čeho chytnout 
CROMA 1.9JTD/110kW r.06 -EMOTION-
Lancia Musa 1.4 16V r.11-PLATINO-
PUNTO 75 ELX r.96
IDEA 1.4 16V/70kW r.07
Stilo 1.6 16V/76kW r.02 Dynamic
Seicento 1.1 SPI HOBBY r.99...
TIPO 1.4 r.94...
UNO 1.5 MPI r.87
Lancia Musa 1.4 16V r.11-PLATINO-
PUNTO 75 ELX r.96
IDEA 1.4 16V/70kW r.07
Stilo 1.6 16V/76kW r.02 Dynamic
Seicento 1.1 SPI HOBBY r.99...
TIPO 1.4 r.94...
UNO 1.5 MPI r.87
- Reklama
Re: punto MKI a el.zrcátka
nikdo neví? to teda budu asi první co se do toho pustí 
CROMA 1.9JTD/110kW r.06 -EMOTION-
Lancia Musa 1.4 16V r.11-PLATINO-
PUNTO 75 ELX r.96
IDEA 1.4 16V/70kW r.07
Stilo 1.6 16V/76kW r.02 Dynamic
Seicento 1.1 SPI HOBBY r.99...
TIPO 1.4 r.94...
UNO 1.5 MPI r.87
Lancia Musa 1.4 16V r.11-PLATINO-
PUNTO 75 ELX r.96
IDEA 1.4 16V/70kW r.07
Stilo 1.6 16V/76kW r.02 Dynamic
Seicento 1.1 SPI HOBBY r.99...
TIPO 1.4 r.94...
UNO 1.5 MPI r.87
Re: punto MKI a el.zrcátka
nazdar taky zhanim jak je napojit ale nevim kde to mam sehnat .nevis nahodou o necem dik cau
Re: punto MKI a el.zrcátka
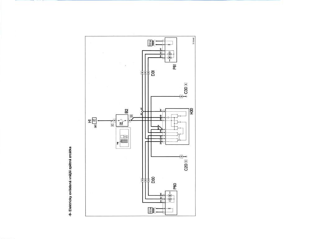
Tady je zapojení v PUNTO MK 2. Bude to zřejmě stejné jako v MK1.Jinak to asi ani nejde zapojit.
- Přílohy
-
- vnější zrcátka schema zapojení.JPG (35.84 KiB) Zobrazeno 2592 x
FIAT PUNTO MK ll HLX 1,9 JTD 80/59KW. 9.99 5 dv.šedostříbr.meta.
Re: punto MKI a el.zrcátka
stačí? 
http://www.imagelink.cz/images/elzrctka.jpg" onclick="window.open(this.href);return false;
http://www.imagelink.cz/images/speaky.jpg" onclick="window.open(this.href);return false;
http://www.imagelink.cz/images/elzrctka.jpg" onclick="window.open(this.href);return false;
http://www.imagelink.cz/images/speaky.jpg" onclick="window.open(this.href);return false;
CROMA 1.9JTD/110kW r.06 -EMOTION-
Lancia Musa 1.4 16V r.11-PLATINO-
PUNTO 75 ELX r.96
IDEA 1.4 16V/70kW r.07
Stilo 1.6 16V/76kW r.02 Dynamic
Seicento 1.1 SPI HOBBY r.99...
TIPO 1.4 r.94...
UNO 1.5 MPI r.87
Lancia Musa 1.4 16V r.11-PLATINO-
PUNTO 75 ELX r.96
IDEA 1.4 16V/70kW r.07
Stilo 1.6 16V/76kW r.02 Dynamic
Seicento 1.1 SPI HOBBY r.99...
TIPO 1.4 r.94...
UNO 1.5 MPI r.87
Re: punto MKI a el.zrcátka
diky mocliborko píše:stačí?
http://www.imagelink.cz/images/elzrctka.jpg" onclick="window.open(this.href);return false;
http://www.imagelink.cz/images/speaky.jpg" onclick="window.open(this.href);return false;