desinfekce klimatizace

Elektronika, el. výbava, diagnostika, kontrolky, přístroje

Moderátoři: peta.smolik, mad mike, Matto, Katy

Odpovědět
ffugas
Začátečník
Příspěvky: 31
Registrován: 27 led 2009, 16:59

desinfekce klimatizace

Příspěvek od ffugas »

Zdravím, mám Punto 2, chci si udělat desinfekci svépomocí. A bylo mi řečeno, že mám přípravek nastříkat přímo na výparník. Ale k tomu se dá těžko dostat. Máte někdo nějaký fígl jak na to. Přes otvor pylového filtru se tam dostat taky nemohu.
Díky ffugas
Reklama
 

Uživatelský avatar
Jaroslav1
Zkušenej Fiaťák
Příspěvky: 399
Registrován: 06 říj 2010, 20:42

Re: desinfekce klimatizace

Příspěvek od Jaroslav1 »

Desinfikuje to každý různě.Při kontrole a plnění klimatizace to provedou,dá se koupit desinfekce i ve spreji a spustit v kabině,já používám naředěný Ajatin roztok koupený v lékárně (kolem 100,-kč/litr),vyndám pylový filtr a nastříkám rozprašovačem na výparník. Doporočuje se také vypínat klimatizaci nějakou minutu před ukončením jízdy.
FIAT PUNTO MK ll HLX 1,9 JTD 80/59KW. 9.99 5 dv.šedostříbr.meta.
ffugas
Začátečník
Příspěvky: 31
Registrován: 27 led 2009, 16:59

Re: desinfekce klimatizace

Příspěvek od ffugas »

To chápu, sprej mám koupený, ale výparník před vyndaný filtr nevidím.
Uživatelský avatar
rossi
Znalec
Příspěvky: 802
Registrován: 10 zář 2008, 16:07
Bydliště: Slavkov u Brna

Re: desinfekce klimatizace

Příspěvek od rossi »

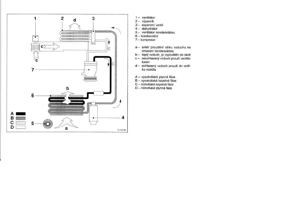
nevim jak to ma Mk2. Ale u Mk1 ho neuvidíš,je v jednotce topení. Přes pyl. filtr a pak přes větrací mřížky prostrč hadičku která byla u spreje co nejdál a za pomaleho vytahování stříkej sprej.Nech chvíli působit a pak zapni větrání.Můžeš vicekrat opakovat.Spreje které se stříkají do kabiny jsou na .....
Přílohy
klima.JPG
klima.JPG (104.38 KiB) Zobrazeno 3334 x
Rossi
Fiat Punto 1.6Mk1 90 ELX resuscitován
AUDI A6 3.0 Quatro 2002
Uživatelský avatar
Jaroslav1
Zkušenej Fiaťák
Příspěvky: 399
Registrován: 06 říj 2010, 20:42

Re: desinfekce klimatizace

Příspěvek od Jaroslav1 »

Přesně tak to udělej jak píše rossi,je v topení a tak ho neuvidíš. Musíš vyndat pylový filtr u spolujezdce a tam to aplikovat.
Přílohy
PYLOVÝ FILTR.JPG
PYLOVÝ FILTR.JPG (14.7 KiB) Zobrazeno 3324 x
KLIMATIZACE.JPG
KLIMATIZACE.JPG (48.14 KiB) Zobrazeno 3332 x
FIAT PUNTO MK ll HLX 1,9 JTD 80/59KW. 9.99 5 dv.šedostříbr.meta.
ffugas
Začátečník
Příspěvky: 31
Registrován: 27 led 2009, 16:59

Re: desinfekce klimatizace

Příspěvek od ffugas »

Což ten filtr v pohodě vyndám, ten měním pravidelně, akorát jsem přesně nevěděl kam vrazit tu hadičku. Jen jsem to odhadoval z motorového prostoru kam vedou trubky klimy.
Odpovědět

Zpět na „Punto - elektrika“